IBARQ - Arquitectura & Real Estate. Estudio de Arquitectura y Urbanismo.
IBARQ    -    Arquitectura & Real Estate.Estudio de Arquitectura y Urbanismo.

Ultimos proyectos y reformas realizadas por IBARQ.

Proyecto y reforma integral de vivienda en Quevedo. Madrid

Datos generales del proyecto
Tareas
  • Asesoria tecnica y de viabilidad previa para la adquisicion del inmueble
  • Levantamiento de planos actuales y propuesta.
  • Proyecto de reforma integral de vivienda.
  • Construccion de la obra
Año
  • 2015
Presupuesto
  • N/D

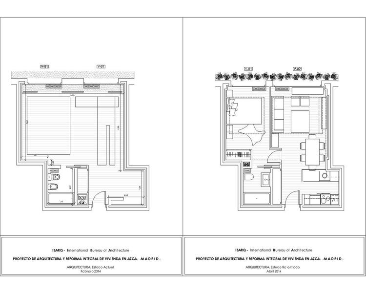
Proyecto y reforma integral de vivienda en AZCA. Madrid

Datos generales del proyecto
Tareas
  • Asesoria tecnica y de viabilidad previa para la adquisicion del inmueble
  • Levantamiento de planos actuales y propuesta.
  • Proyecto de reforma integral de la vivienda.
  • Construccion de la obra
Año
  • 2014
Presupuesto
  • N/D

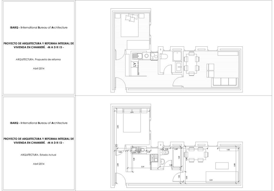
Anteproyecto de reforma integral de vivienda en Chamberí. Madrid

Datos generales del proyecto
Tareas
  • Asesoria tecnica y de viabilidad previa para la adquisicion del inmueble
  • Levantamiento de planos actuales y propuesta.
Año
  • 2014
Presupuesto
  • N/D

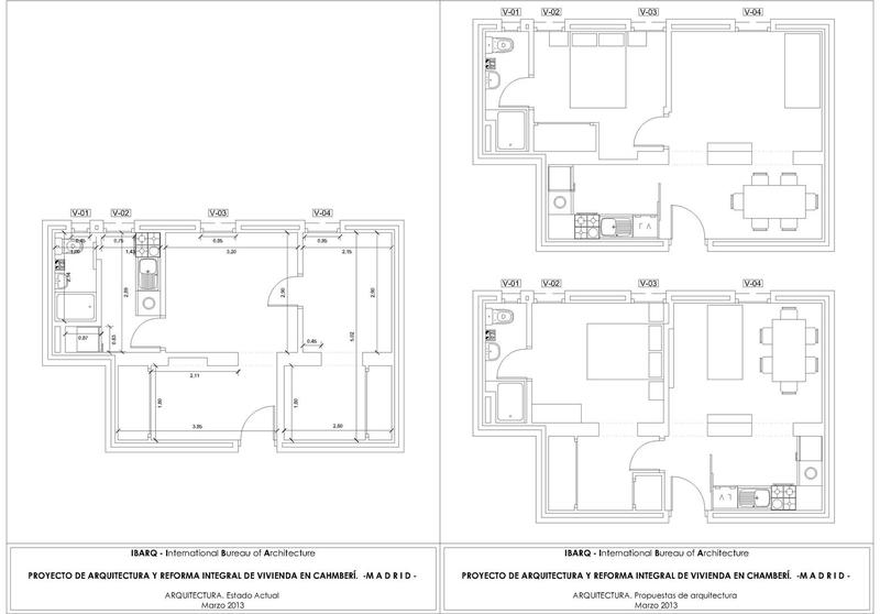
Anteproyecto de reforma integral de vivienda en Chamberí. Madrid

Datos generales del proyecto
Tareas
  • Asesoria tecnica y de viabilidad previa para la adquisicion del inmueble
  • Levantamiento de planos actuales y propuesta.
Año
  • 2013
Presupuesto
  • N/D
Versión para imprimir | Mapa del sitio
© IBARQ - International Bureau of Architecture.